Sur un terrain d'environ 16 000 m2, dans un cadre impressionnant et pittoresque avec vue sur le château et le Puig de Alaró, ce développement impressionnant est en cours de construction, conçu et approuvé conformément aux anciennes normes de construction. La surface totale construite dépasse les impressionnants 678,20 m2 et est répartie sur deux étages et un sous-sol.
Le rez-de-chaussée dispose d'un salon, qui peut également servir de home cinéma, d'un toilette pour invités, d'une cuisine entièrement équipée de haute qualité et d'un spacieux et lumineux salon-salle à manger. De plus, le rez-de-chaussée offre un accès direct à une grande terrasse couverte et découverte avec une belle piscine et une fantastique zone chill-out.
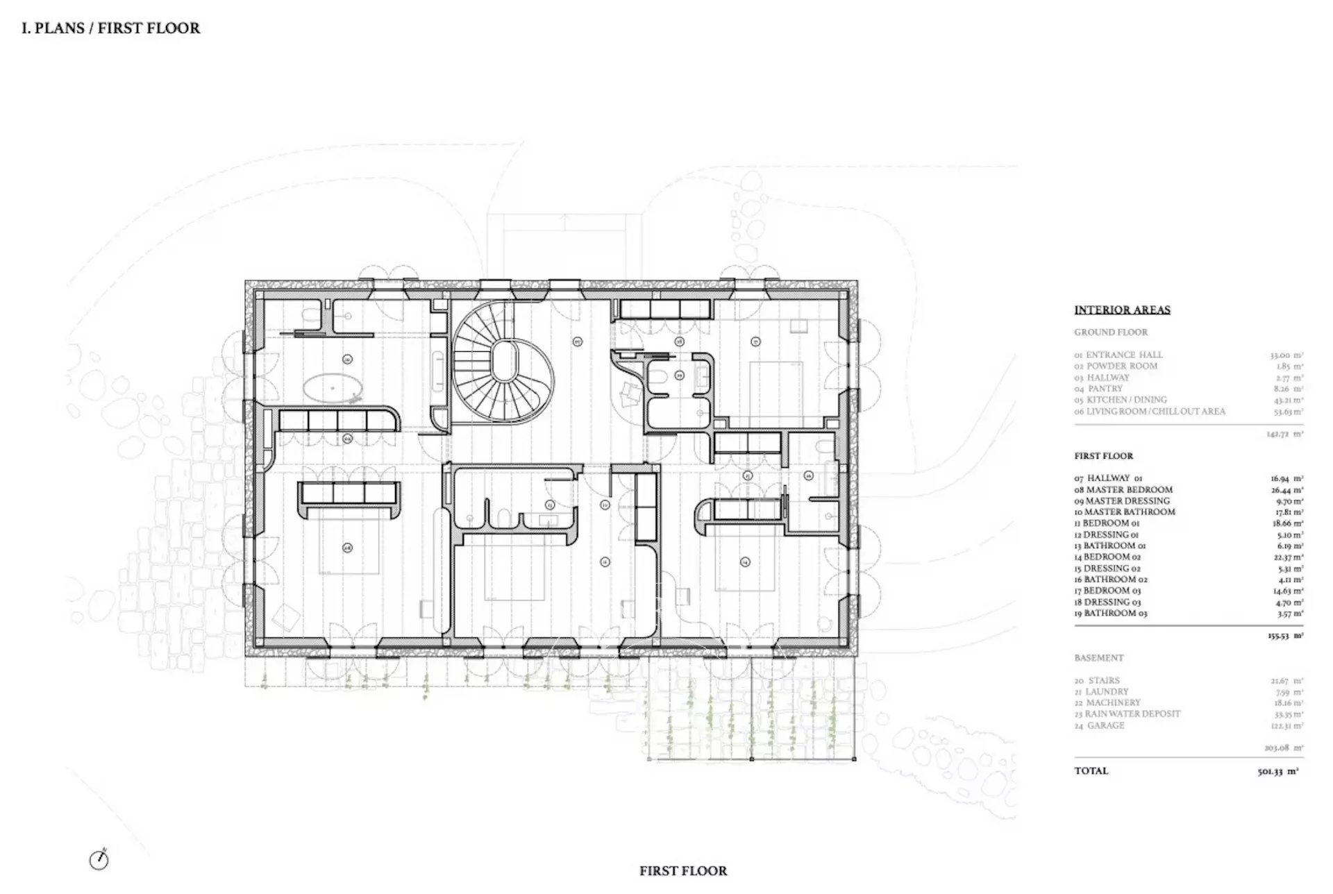
Au premier étage, vous trouverez trois chambres spacieuses, toutes avec salle de bains attenante et dressing. La chambre principale est exceptionnellement spacieuse, avec une salle de bains attenante et un grand dressing. Il y a aussi un autre salon, qui peut être utilisé alternativement comme bibliothèque ou bureau, et depuis lequel vous accédez à un balcon. Ici, vous pourrez profiter d'une vue fantastique sur le jardin et les montagnes environnantes.
Le sous-sol abrite un grand garage avec des places de parking pour quatre véhicules, une salle des machines, une buanderie et un espace de stockage supplémentaire. Parmi les autres commodités, on trouve le chauffage central, la climatisation et une cheminée confortable.
Le permis de construire a déjà été accordé et l'achèvement est prévu dans environ 18 mois.
    
 
                    
                 
             
             
                                                                                                                                                                                 
                                 
                                 
                                 
                                 
                                 
                                 
                                 
                                 
                                 
                                 
                                 
                                